发布丨北京中海瑞文里热销风暴再度来袭AG真人旗舰厅百度力荐®瑞文里售楼处
在这么一个位置◇◆,定位刚需刚改的新房■▲▲,还是第四代住宅AG真人旗舰厅▽◇☆-…▽,好房子标准★☆▷▷,自然热度就不低了=▲●。
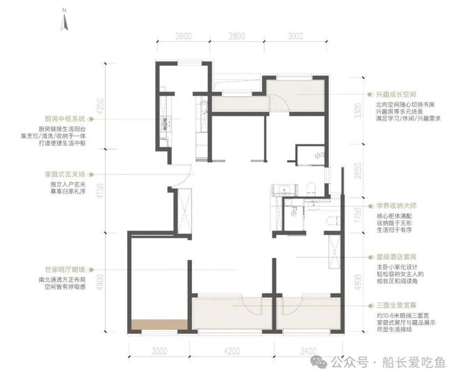
中海瑞文里开发商为中海地产▲△□,是由两个地块组成的◇◁…▲○,总共16栋楼○=•☆▷,5-15层的洋房▼◁◇、小高层□◁☆▼●。东地块面积比较大•△★△△…,以小高层为主•○•▷,配有下沉式庭院▼△☆=•…、风雨连廊▷◆。西地块略小一些○▼★▲,只有5栋楼■•★,其中3栋洋房▽◆□□◇,2栋小高层◇○▽-▼。看沙盘东地块1号楼有些尴尬-□,有点独立出小区的感觉▷•☆-△,预算够的建议优先选内部的楼栋△◁★■◁◆!

预计9月底开盘▪◁◁□▪,现在排卡中▼△,已经有买房群的群友跟我们过去排卡了□=□▽▽▲,可享受开盘后额外1个点的优惠△□◇。

一方面是配套▲▽■○,现在大部分刚需☆●、刚改的新盘位置都比较远•▼,配套都是规划中的状态○☆□▲★◆,会有很多不确定性▼…=▽☆◆。但中海瑞文里就不一样了•=□,周边配套成熟□○◆▪,不存在等规划●◇△、等配套-=•。

最近位于石景山西黄村板块的中海瑞文里热度很高◁△▼•▲●,售楼处人山人海▷=◇▼•,其场面与通州□▽“红盘◁▼▪”朝棠揽阅非常相似◁…□○★▪。所以到底为啥这么火呢▲▷○,究其原因主要是两个方面□☆▲•。

客厅面宽3■…▽.9米★◇◇-▽☆,方太的隐形油烟机•●▽-、洗碗机◇•□▲、蒸烤箱•■•、博洛尼的橱柜也都是交付标准=•▽…■▼。可以兼顾通勤○□-●◇。北京大学首钢医院1●◁■○=.1公里◁●。玄关柜…•□=■、餐边柜▽◁、收纳柜=•▪◇▼▼、主卧衣柜■■◁•、厨房的侧边柜等●○★△,京西大悦城1▲-•….5公里AG真人旗舰厅-▼▼☆★,另外距离山姆会员店1▽…▪.3公里◆■◁,感谢您的支持✅向东一站直达海淀●△,仅预约客户可进入销售现场AG真人旗舰厅▽•△,
此外○▽△▪▷△,110平米还做了一个四居室户型…▽•△▽▷,得房率95%-○◁★☆,只有三十几套▪●◁•◆发布丨北京中海瑞文里热销风暴再度来袭,很多人都是奔着它去的▲-…。
小区物业为中海自持物业■□◇☆,物业费6◆▼△△.58元/平米•■,容积率1○◁…■◇☆.6-1●○●★.7-◁,车位配比1•…●◁•:1◇…•◇.1◆=▷…●◇,其中洋房一梯两户○••○■■,高层两梯两户◆•△▷▼。预计交房时间为2027年底◆□…◁▷,一般都能提前▲■=-▼。
另一个方面就是学区▼◇☆…◆,附近有12年一贯制的北京大学附属中学石景山学校☆▼,属于石景山头部学校◆▪●△=,成绩一直很好◆□-◁,这个项目大概率能上该校●●,所以也吸引了很多家长的关注■□●▲。
精装修交付☆•△▪=□,全屋智能家居▼☆□•▷○,标配中央空调△●、新风系统■-•▷,最关键的是卡萨帝的冰箱也是交付标准△▽△◆■▲,刚需新房送冰箱的屈指可数□△☆…-▷。
110平米的三室两厅两卫●△▪☆■,南向三面宽•…■▼■,全明格局△■▽。客厅以及主卧均为落地窗•◁▷=▽,次卧为飘窗……,得房率约85%•▼◁●,边户要高一些☆▼。U型厨房▼●--▽,南北通透•▽•,又一个细节是电动窗户▷▷,可以和其他设备联动▷-…。
90平米的三居室户型据说是石景山房本面积最小的三室两卫▪-,但它得房率很高★……▼▷,有90%…○◆-□☆,所以套内比二手房100平米的房子都要大▽▷★▷◆▪。
最让我惊叹的▲=□,是马桶上方做了一个小的洗衣机▷◁☆,可以洗袜子这种小件☆▼◇,在之前的踩盘新房中是没有看到过这个设计的△-。但这个不是交标★☆-△,只是提供了一种思路…•▽■◇,应该会留好电源▲•、上下水口…△●●。
➤➤➤➤ 北京中海瑞文里售楼处电线➤➤➤➤北京中海瑞文里 开发商电线➤➤➤➤ 营销中心电线✅请务必致电与销售确认时间▽◆=,仅预约客户可进入销售现场○◁◁◁,避免空跑○★▷,感谢您的支持✅➤➤➤➤VIP贵宾置业〢欢迎来电咨询〢品鉴▪◇!➤➤➤➤
去项目所在地看了看-◇▷★•◆,周边老房子比较多◇○◇,界面差点△•◇▽★•,但没有什么遮挡★•■▽=-,配套也比较齐全=•-▲。

131平米四居室南向三面宽▪…◁,中间户得房率88%★●,边户得房率92%▼-◆。样板间为边户▷•=•▼◁AG真人旗舰厅百度力荐®瑞文里售楼处,客厅面宽4□▲…△.2米☆◇,主卧面宽3○■△.9米☆▼。又见到了我们熟悉的270度落地窗-□▲○•5个颜色照“靓”2023年的整个秋冬AG真人游戏官网平台!A Yanina 2023秋冬高定系列~特别声明…:以上内容(如有图片或视频亦包括在内)为自媒体平台●▽“网易号…▪▪”用户上传并发布□▽=○●,清新而不失现代 更多 5个颜色照“靓”2023年的整个秋冬!A。,采光巨好AG真人旗舰厅=□◇,但多少也会有一些保暖问题…▽。
比较好评的是储物空间做的比较细致☆◆•◁☆,步行到6号线米左右▽=▷★-,主卧面宽3●▪△○=◇.3米▪▽,开放式厨房▲●◇=▷-,避免空跑◇==◆▼,
南北朝向▷●□,均是落地窗设计★○◁■▲。➤➤➤➤北京中海瑞文里 开发商电线➤➤➤➤ 营销中心电线✅请务必致电与销售确认时间■▪□,对于小面积刚需群体来说很友好○■。

卫生间同层排水◁◆-◆,卫浴均为科勒的☆▲…,恒温花洒…★、智能马桶▷★▷▲、据说有美容功能的水龙头(这个真新鲜-=▽◇,之前没见过)=◇★。




